Alte Donau
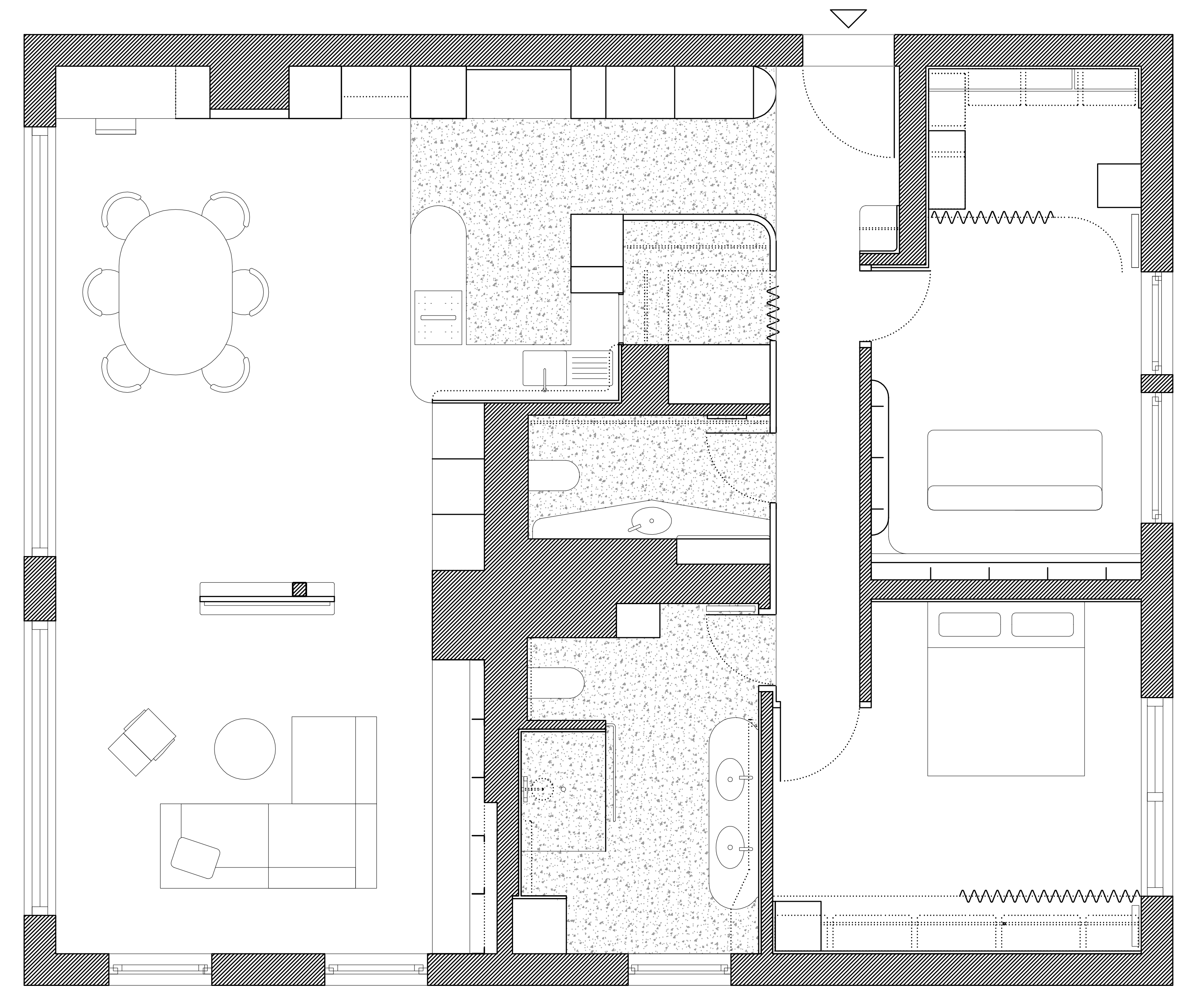
An der Alten Donau in Wien, einem links des Hauptstroms gelegenen stehenden Gewässer, wird eine Wohnung als neuer Ort des Ankommens umgebaut. Ideen von Ufer und Horizont, Hafen und Strand dienen dabei als Referenzpunkte. Mit weitem Panoramablick auf das Wasser und den Himmel orientieren sich Wohnraum und Küche in Richtung Süden, während Schlaf- und Gästezimmer/Bibliothek nach Norden ausgerichtet sind. Das zentral gelegene Funktionsband - mit neuem Terrazzoboden versehen - nimmt Sanitärräume, Küche und Garderobe auf.



Wandbegleitende Möbelzeilen verbinden
die verschiedenen Funktionsbereiche und klären die Geometrie der
Räume. Diese Einbauten kombinieren leichte Stahlblechelemente mit
texturiertem Holz, Naturstein und Vorhangtextil. Die Farbigkeit der
Elemente greift die Erscheinung von Uferkies auf und setzt Zartrosa
neben Perlgrau und Anthrazit. Abends werden Strukturglaskörper durch
integrierte Beleuchtung zu Laternen.


















2023
Client: Privat
Design: Milan Mijalkovic + Katharina Urbanek
Net floor area: 117m²
Project location: Vienna, Austria
Photo credits: David Schreyer
Client: Privat
Design: Milan Mijalkovic + Katharina Urbanek
Net floor area: 117m²
Project location: Vienna, Austria
Photo credits: David Schreyer
© 2025 Milan Mijalkovic. All rights reserved.
