Wasserturmhaus


Die Siedlung Am Wasserturm im 10. Bezirk wurde als eines der Projekte der Wiener Siedlerbewegung in den Jahren 1924/1925 erbaut. Franz Schacherl und Franz Schuster planten die Anlage von 190 Häusern, alle zweigeschossig, halb unterkellert und mit ausbaubarem Dach. Acht kompakte Grundrisstypen mit zahlreichen Varianten konnten an die jeweilige Situation in der Siedlung angepasst werden und bildeten durch sich wiederholende Elemente (wie Dächer, Fenster oder Sichtziegeldekors) dennoch eine architektonische Einheit. Im Gegensatz zu früheren Siedlungen wurden die Häuser am Wasserturm nicht genossenschaftlich sondern als Eigenheime konzipiert, was seither zu zahlreichen Adaptierungen und Erweiterungen führte.


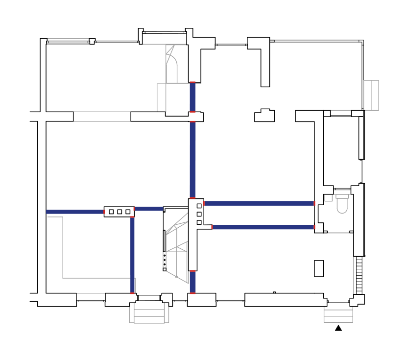
Zwei stetig gewachsene, benachbarte Reihenhäuser werden zu einer Einheit verbunden, die Raum für Wohnen, Sammeln, kreatives Arbeiten und Langzeitgäste bietet. Die Interventionen reihen sich in die vielfachen Veränderungen der Originalsubstanz ein und verstehen sich als lesbare Implantate.
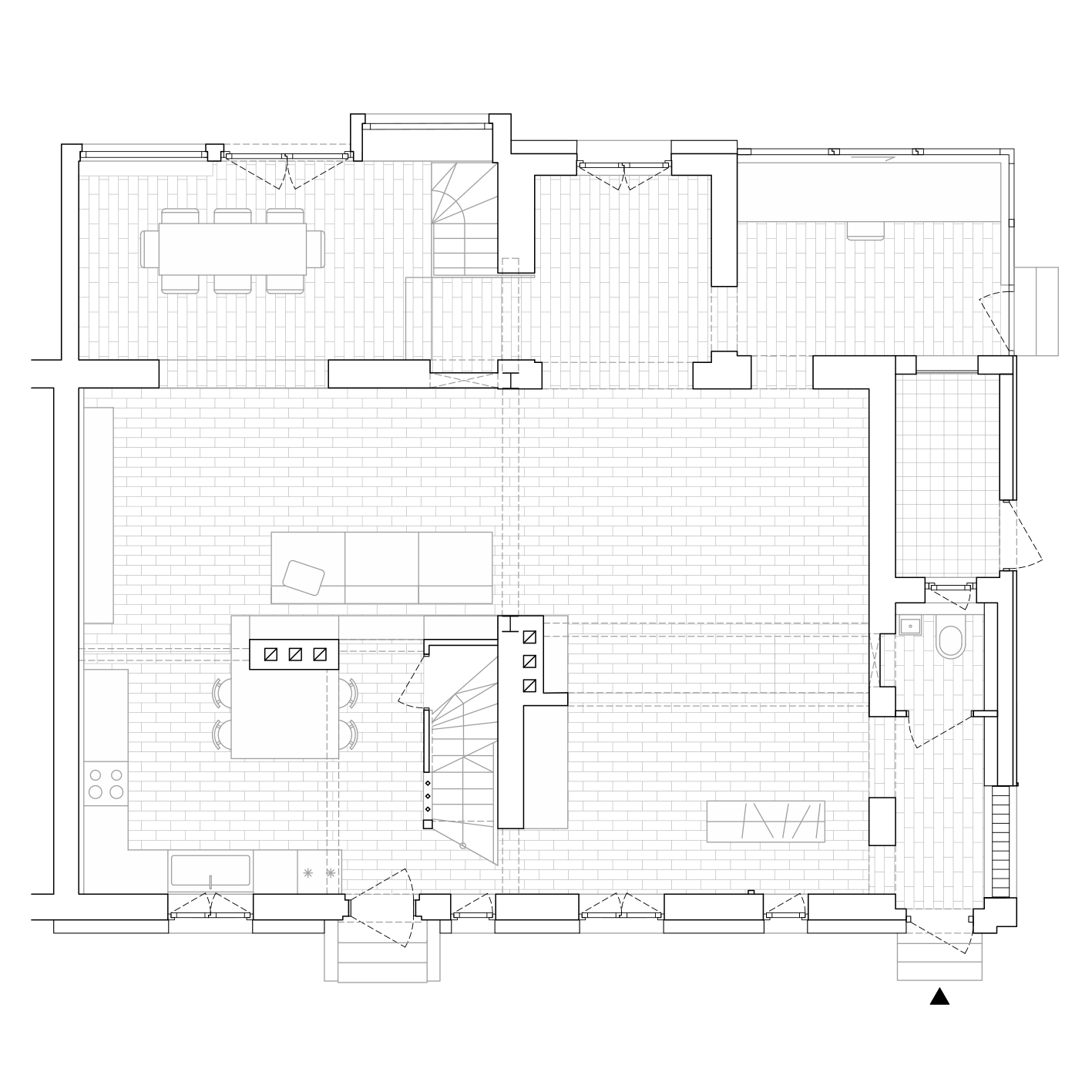
Kaminmöbel, Küche und Kellerstiege werden zu drei neuen Schwerpunkten im ansonsten entleerten Erdgeschoss. Die Zubauten der letzten Jahrzehnte verbinden sich zur Enfilade, die sich so für neue Nutzungszusammenhänge öffnet. Bestehende und neue Durchbrüche zwischen Althäusern und Zubauten werden sichtbar gemacht. Sichtziegel, weiße Stahlträger und Einbauten in enzianblau markieren diese Etappe der Veränderung.














2022-2023
Projektpartner: Katharina Urbanek
Größe: 230m² NFL
Auftraggeber: Privat
Project location: Vienna, Austria
Foto: David Schreyer
Projektpartner: Katharina Urbanek
Größe: 230m² NFL
Auftraggeber: Privat
Project location: Vienna, Austria
Foto: David Schreyer
© 2025 Milan Mijalkovic. All rights reserved.